Search

Leave a Message

Thank you for your message. We will be in touch with you shortly.

Explore Our Properties

Property Description

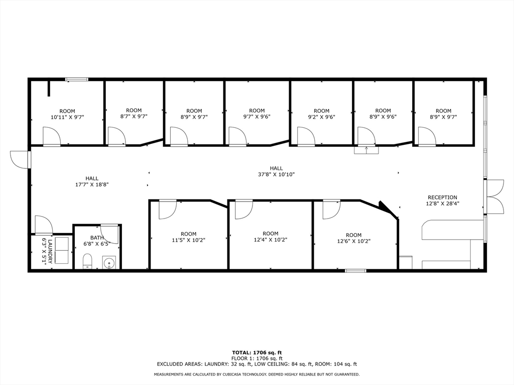
Are you an entrepreneur looking for the perfect location for your business? Welcome to 595 Washington Street. This popular plaza in Stoughton's business district shares space with a diner, a bank and more. In this space you'll benefit from ample parking, plenty of traffic and brand exposure and 2,100 sqft of open space. This property would make a great spa, salon, Restaurant, retail shop, office space and more. Come with ideas for making this space your own.

Overview

Property Status
Leased
Lot Size
1.21 Acres
MLS ID
73314744
Property Type
Commercial
Year Built
1984

Features & Amenities

Total Area
2,100 Sq.Ft.
Neighborhood
Stoughton
Utilites
Public Water
Lease Price
$3,000/mo
Real Estate Tax
$99,999,999/yr
Zoning
GEN BUS

Downloads

595 Washington Street

Schedule a Tour

We would love to help you see this beautiful home! As a full-service brokerage, we can help you tour. Please submit an offer, and answer questions about the buying process.

Thank you

for your interest in 595 Washington Street, Stoughton, MA 02072

595 Washington Street
Navigate
Stoughton

Explore Stoughton

A diverse, community-focused urban locale.

read more

I'm Interested In

595 Washington Street

Exclusive Properties

  • 296 Chapman St Pending

    $949,000

    296 Chapman, Canton, MA 02021

    • 5 Beds
    • 2 Baths
    • 2,969 Sq.Ft.
  • 89 Neponset Street # 89 For Sale

    $935,000

    89 Neponset Street # 89, Canton, MA 02021

    • 2 Beds
    • 2 Baths
    • 2,054 Sq.Ft.
  • 77 Neponset Street # 77 Pending

    $899,000

    77 Neponset Street # 77, Canton, MA 02021

    • 2 Beds
    • 2 Baths
    • 2,054 Sq.Ft.
  • 87 Neponset Street # 87 For Sale

    $899,000

    87 Neponset Street # 87, Canton, MA 02021

    • 2 Beds
    • 2 Baths
    • 2,054 Sq.Ft.
  • 2 Casey St Active Under Contract

    $879,900

    2 Casey St, Canton, MA 02021

    • 4 Beds
    • 3 Baths
    • 2,255 Sq.Ft.
  • 20 Francis Rd Pending

    $799,900

    20 Francis Rd, Sharon, MA 02067

    • 3 Beds
    • 2 Baths
    • 2,221 Sq.Ft.
  • 273 Havre # 4 Pending

    $680,000

    273 Havre # 4, Boston, MA 02128

    • 2 Beds
    • 2 Baths
    • 900 Sq.Ft.
  • 1345 Central St For Sale

    $669,000

    1345 Central St, Stoughton, MA 02072

    • 4 Beds
    • 2 Baths
    • 1,471 Sq.Ft.
  • 273 Havre # 1 For Sale

    $650,000

    273 Havre # 1, Boston, MA 02128

    • 2 Beds
    • 2 Baths
    • 900 Sq.Ft.
  • 51 Branch St # 3 Pending

    $649,000

    51 Branch St # 3, Quincy, MA 02169

    • 2 Beds
    • 3 Baths
    • 1,202 Sq.Ft.
  • 24 Pleasant Park Rd Pending

    $579,000

    24 Pleasant Park Rd, Sharon, MA 02067

    • 3 Beds
    • 1 Bath
    • 1,438 Sq.Ft.
  • 6 Lindsell St For Sale

    $575,000

    6 Lindsell St, Saugus, MA 01906

    • 2 Beds
    • 2 Baths
    • 889 Sq.Ft.
  • 65 Maple St # B Pending

    $549,900

    65 Maple St # B, Canton, MA 02021

    • 2 Beds
    • 3 Baths
    • 1,644 Sq.Ft.
  • 126 Linden St # A Active Under Contract

    $539,000

    126 Linden St # A, Attleboro, MA 02703

    • 3 Beds
    • 3 Baths
    • 2,306 Sq.Ft.
  • 72 Kim Ter # C For Sale

    $529,900

    72 Kim Ter # C, Stoughton, MA 02072

    • 3 Beds
    • 3 Baths
    • 2,328 Sq.Ft.
  • 45 Meadowood Dr # 45 Active Under Contract

    $399,900

    45 Meadowood Dr # 45, Stoughton, MA 02072

    • 2 Beds
    • 2 Baths
    • 1,260 Sq.Ft.
  • 46 Sharron Dr # 46 Active Under Contract

    $369,900

    46 Sharron Dr # 46, Easton, MA 02375

    • 2 Beds
    • 2 Baths
    • 1,480 Sq.Ft.
  • 9 Greenbrook Dr # 9 Pending

    $334,900

    9 Greenbrook Dr # 9, Stoughton, MA 02072

    • 2 Beds
    • 2 Baths
    • 1,243 Sq.Ft.
  • 655 Washington St For Rent

    $500/mo

    655 Washington St, Canton, MA 02021

    • 2 Baths
    • 2,200 Sq.Ft.
View All

Follow Us On Instagram